-
1
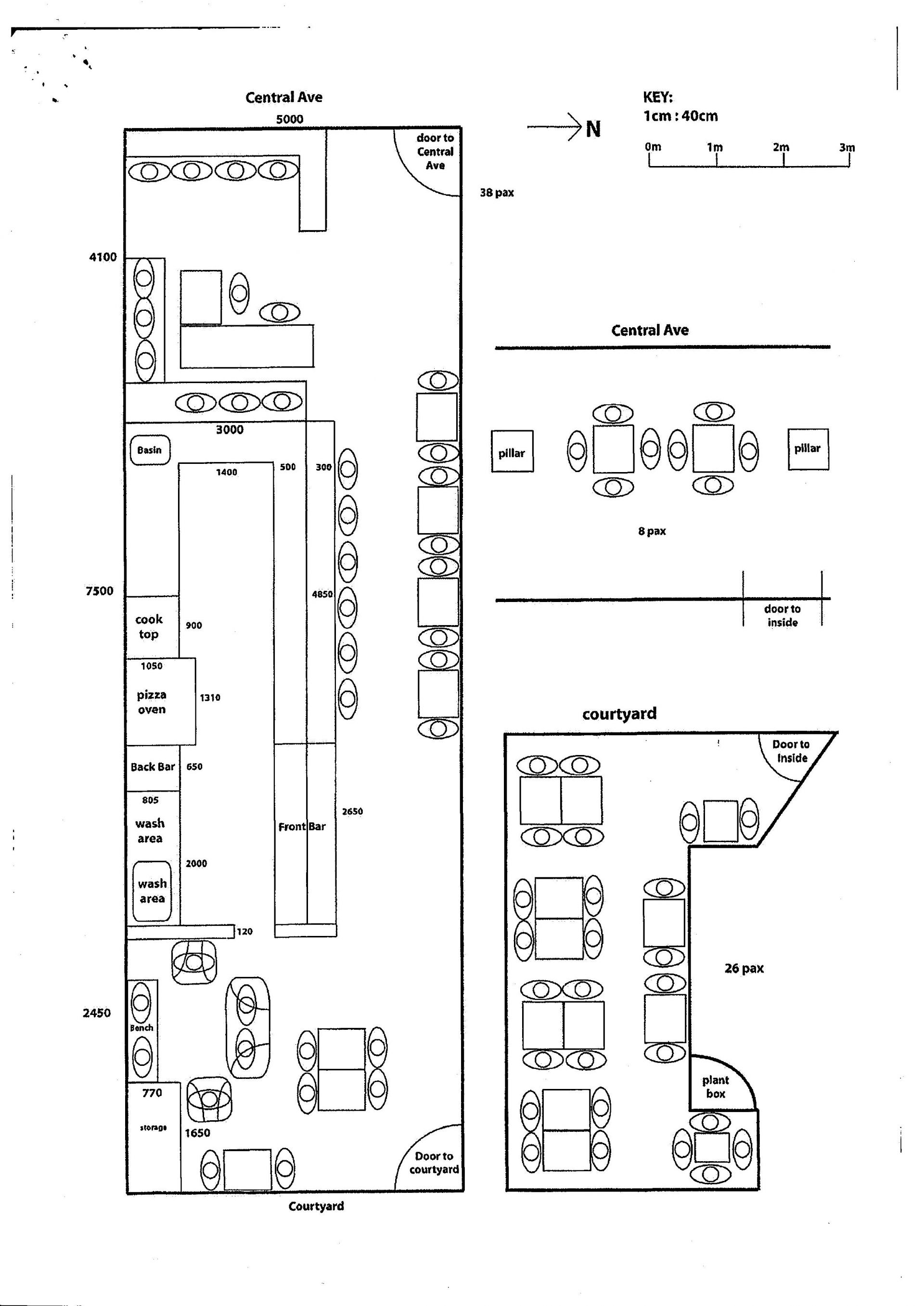
7/9-15 Central Avenue, Manly NSW 2095
Cook Up Something Special...
Your next hospitality hotspot is ready to go - in the thick of the action and set up for success.
Whether you're launching a new concept or expanding an existing brand, this turnkey-ready space puts you front and centre among the Northern Beaches' dining crowd.
Property Highlights:
Approved for Restaurant / Café / Bar Use
Flexible Lease Term
Prime Street Exposure with Bifold Doors for Open-Air Vibes
Fully Equipped Commercial Kitchen
Grease Trap + Mechanical Exhaust + Hot Water System
Under-Bench Refrigeration Already Installed
Bonus Courtyard Space (Licence Fee Applies)
Shared Bathroom Facilities
Council Car Parks Nearby for Customer Convenience
Neighbouring Some of the Area's Most Popular Bars & Restaurants
Surround yourself with foot traffic and good company - this is the kind of position you want your venue to be in.
Please note: All prospective tenants must make their own enquiries with local authorities regarding permitted use under planning laws.
Whether you're launching a new concept or expanding an existing brand, this turnkey-ready space puts you front and centre among the Northern Beaches' dining crowd.
Property Highlights:
Approved for Restaurant / Café / Bar Use
Flexible Lease Term
Prime Street Exposure with Bifold Doors for Open-Air Vibes
Fully Equipped Commercial Kitchen
Grease Trap + Mechanical Exhaust + Hot Water System
Under-Bench Refrigeration Already Installed
Bonus Courtyard Space (Licence Fee Applies)
Shared Bathroom Facilities
Council Car Parks Nearby for Customer Convenience
Neighbouring Some of the Area's Most Popular Bars & Restaurants
Surround yourself with foot traffic and good company - this is the kind of position you want your venue to be in.
Please note: All prospective tenants must make their own enquiries with local authorities regarding permitted use under planning laws.
